House – Townhouse in Málaga
- €1,950,000
House – Townhouse in Málaga
- €1,950,000
Description
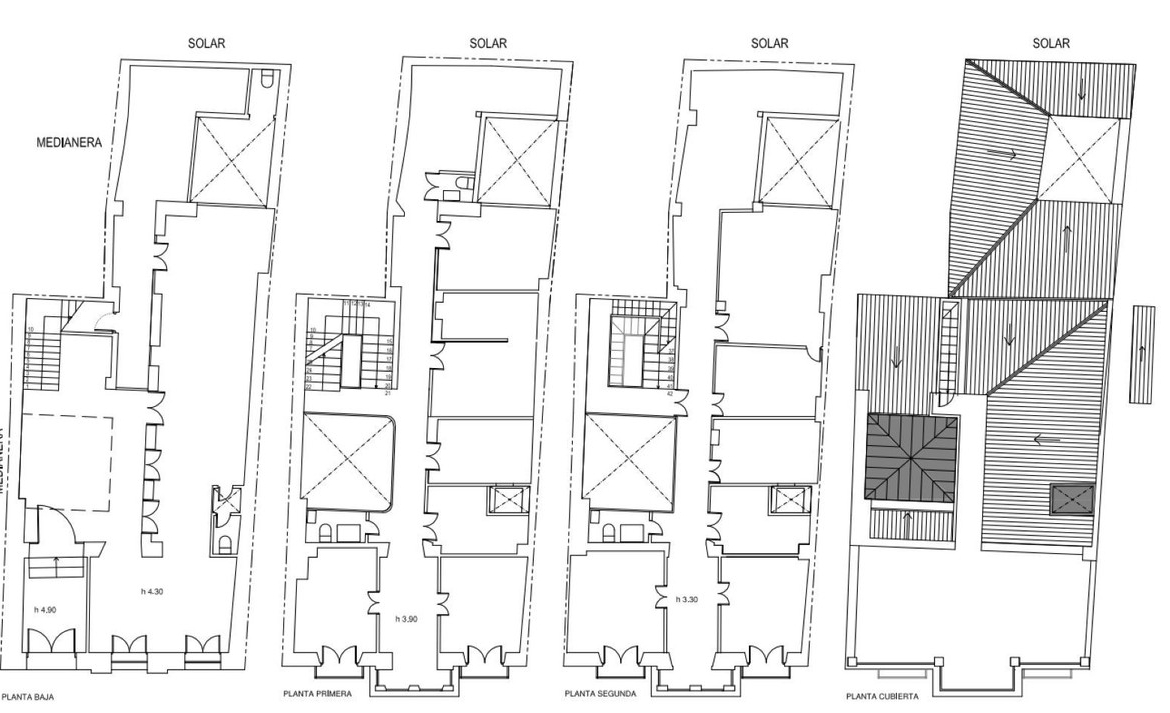
Building in the Malaga Centro Historico with hidden charm and beauty! Built with traditional regional architectural style and documented in the Malaga book of architecture.
Distributed over 3 levels plus a roof terrace with exceptional panoramic city views including the iconic Malaga cathedral and mountains.
This property has great potential to be renovated to a very high standard with extremely high ceilings and lots of internal space.
Address
-
City: Málaga
-
State/county: Málaga
Details
Updated on December 17, 2025 at 3:59 pm-
Property ID R4741732
-
Price €1,950,000
-
Property Size 447
-
Bedrooms 5
-
Bathrooms 5
-
Property Type House - Townhouse
Contact Information
View ListingsSimilar Listings
- duncanldavies@gmail.com









